Ismertető
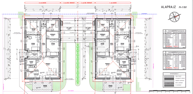
Új, modern, lakóingatlanokat kínálunk eladásra Pest megyében Kókán . Az ingatlanok alapterülete 102 négyzetméter, melyet egy 500 négyzetméteres telek vesz körül(500m2/ingatlan).
3 szoba + amerikai konyhás nappali, 15nm terasszal.
Az ingatlanok NEM érintkeznek egymással, hiszen csak a gk beállók kötik őket össze! Külön helyrajzi számmal fognak rendelkezni, egyedül a beálló lesz osztatlan közös tulajdon!
Referenciaházakat tudunk mutatni, a környező településeken is, akár ugyanezt a tervet. A kivitelező régóta ismert a szakmában!
Műszaki leírás:
- 30-as N+F tégla
- 10 cm grafitos hőszigetelés
- 5 kamrás 3 rétegű hőszigetelt nyílászárók
- melegvíz/fűtés hőszivattyú 10kw
Válaszható:
- burkolatok, hideg – meleg: 4.000.-/m2, 4.000.-/m2
- Beltéri ajtók 50.000.-/db
- Csaptelepek 15.000.-/db
- Fürdőkád vagy zuhanyzó : 50.000.-
AZ INGATLAN CSOK+ KÉPES!
Várható befejezés 2025. 3. negyedév
Intor Ingatlan – Otthont biztonságban!
---------------------------------------------------------------------------------------------------------------------------
Irodánk rendelkezésére áll az értékesítés első lépésétől, egészen az utolsóig. Amennyiben valamelyik ingatlanunkat jelenlegi ingatlanja értékesítése után kívánja megvásárolni, vagy egy megbízható irodával kívánna együttműködni, amely teljeskörű ügyintézést biztosít, megfizethető áron, forduljon hozzánk bizalommal!
Részletek
-
Építés éve:
2025 -
Szobák száma:
4 -
Állapot:
új -
Épület típusa:
ikerház -
Terasz:
15 m2 -
Kilátás:
udvari -
Tájolás:
DK -
Telekméret:
500 m2 -
Övezet:
nincs adat -
Tetőtér:
nincs adat
