Ismertető
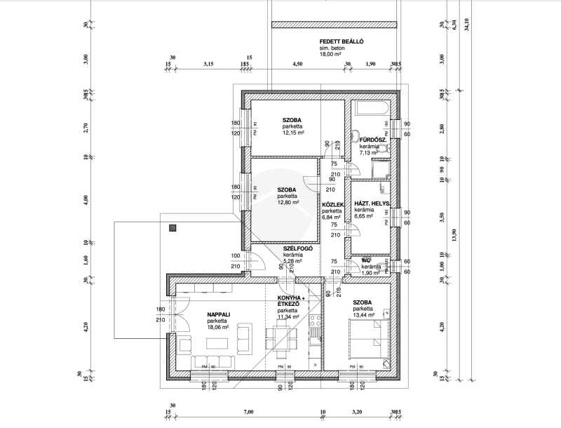
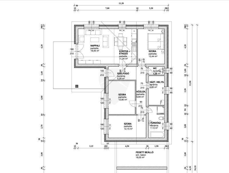
Kókán a Nagykátai úton, egy újépítésű ikerház kerül értékesítésre, amely ingatlanonként nettó 95 m²-es hasznos lakóteret kínál, plusz fedett gépkocsi beálló jár az ingatlanhoz.
Jól átgondolt, világos, tágas terek jellemzik, 3 hálószoba + amerikai konyhás nappali, WC, fürdőszoba, háztartási helyiség található az ingatlanban.
Ikerházak fedett gépkocsi beállókon keresztül csatlakoznak egymáshoz!
Igény esetén, plusz költség fejében garázs kialakítása is lehetséges.
CSOK Plusz támogatás, Otthon Start igényelhető!
Építési és műszaki jellemzők:
30-as tégla falazat, 10 cm-es Ytong belső falazat.
Fa födém.
Antracit színű betoncserép fedés.
Homlokzat: 10 cm Grafitos EPS szigetelés.
Talajnedvesség szigetekés: 1 rtg GV4
Padló: 10 cm lépésálló szigetelés.
Födém: fa gerendák gombaölő szerrel kezelve, 25 cm ásványgyapot szigeteléssel.
Nyílászárók: háromrétegű üvegezéssel ellátott thermo nyílászárók
A fűtési rendszer hőszivattyús, padlófűtéssel kombinálva biztosítja a meleget és a melegvizet.
Utcafronti kerítés: színezett zsalukő pillér + vas kétszárnyú kapu fa lécezéssel
Választható műszaki tartalom (meghatározott keretösszegen belül):
Hidegburkolat: 3000 Ft/m²-ig.
Melegburkolat: 3000 Ft/m²-ig.
Csaptelepek: 15.000 Ft/db
Kád vagy zuhany: 40.000 Ft
Mosdó: 40.000 Ft/db
WC: 25.000 Ft/db
Elektromos rendszer:
Konnektorok:
Szobák: 3 db
Nappali: 4 db + internet és kábel-TV kiállás
Konyha: 6 db
Világítás: helyiségenként 1 pont
Kábeltévé: előkészítés
Riasztó: előkészítés
Kapumozgató elektronika: előkészítés
Extra opciók:
Magasabb kategóriás anyagok választása költségkülönbözet finanszírozása mellett.
Riasztó- és kapumozgató rendszer előkészítése.
Most érdemes vásárolni, mert a piacon az ingatlan árak tekintetében még mindig emelkedés várható!
Hívj még ma!
Részletek
-
Építés éve:
2025 -
Szobák száma:
3 -
Állapot:
új -
Épület típusa:
ikerház -
Kilátás:
udvari -
Tájolás:
É -
Telekméret:
1022 m2 -
Övezet:
nincs adat -
Tetőtér:
nincs adat
