Ismertető
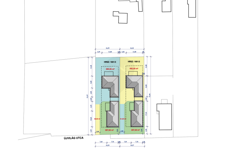
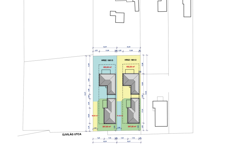
Kókán eladó 4db újépítésű ikerház külön kerített 530 m2 telkeken az Újvilág utcában!
A házakat fedett gépkocsibeállóval kötik össze, így nincs közös fal.
Az utcafronti házak ára 61.9m, a hátsó 58.9m Ft.
-Telek mérete: 530 m²
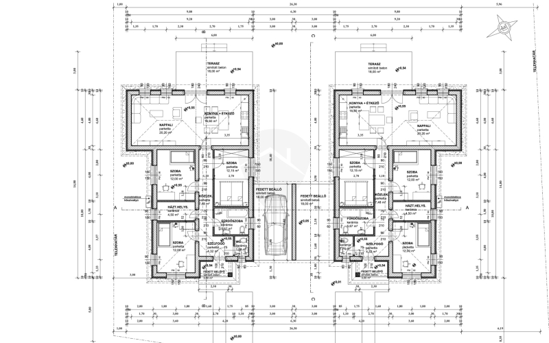
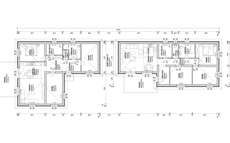
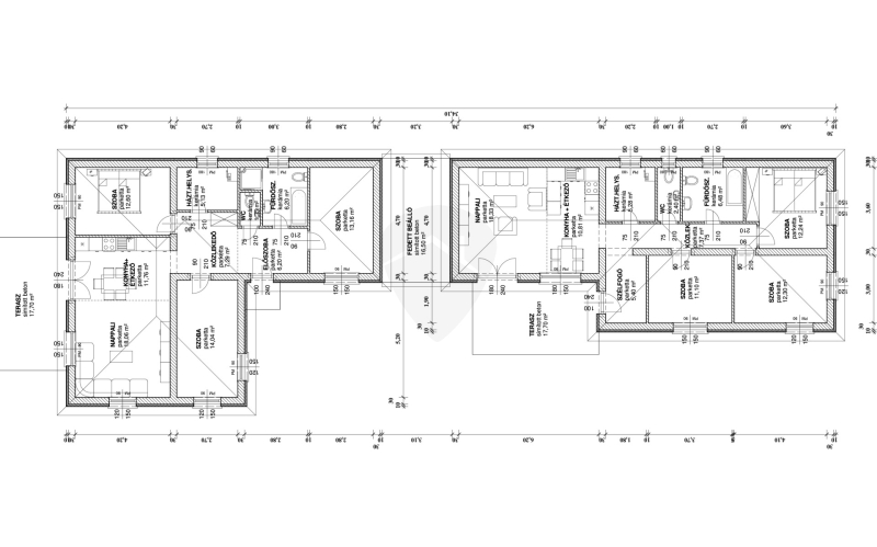
-Nettó hasznos alapterület: 97 m²
-Földszintes ikerfél
Kivitelező és referencia:
A kivitelező több azonos terv alapján készült ingatlant valósított meg Sülysápon és Kókán
Elérhető támogatások:
-CSOK Plusz
-Otthon Start
Szerkezet és szigetelés:
-Falazat: 30 cm nútféderes tégla
-Födém: fafödém
-Tetőfedés: antracit színű betoncserép
-Homlokzat: 15 cm EPS hőszigetelés
-Padló: 10 cm Austrotherm AT-N100 szigetelés
-Vízszintes födém: 25 cm ásványgyapot szigetelés
Nyílászárók:
-Hat légkamrás, háromrétegű üvegezéssel szerelt ablakok
Fűtés:
-Monoblokkos hőszivattyús rendszer
-Padlófűtés
Alap műszaki tartalom (választható keretösszegekig):
-Hidegburkolat: 3.000 Ft/m²
-Melegburkolat: 3.000 Ft/m²
-Csaptelepek: 15.000 Ft/db
-Kád vagy zuhanyzó: 40.000 Ft
-Beltéri ajtók: 35.000 Ft/db
Elektromos kiépítés:
-Szobánként 3 konnektor
-Nappaliban 4 konnektor + internet és kábel TV kiállás
-Konyhában 6 konnektor
-Világítás helyiségenként 1 pont
-Kábeltévé előkészítés
További lehetőségek:
-Magasabb kategóriájú műszaki tartalom is választható a különbözet finanszírozásával
-Riasztórendszer előkészítés
-Kapumozgató elektronika előkészítés
Igény esetén komplett tervdokumentáció és részletes műszaki leírás biztosított
Átadás:
2026. II. negyedév
Teljes körű ingyenes tanácsadás, hitelügyintézés
Intor Ingatlan
Részletek
-
Építés éve:
2025 -
Szobák száma:
4 -
Állapot:
új -
Épület típusa:
ikerház -
Terasz:
20 m2 -
Kilátás:
utcai -
Tájolás:
DNY -
Telekméret:
750 m2 -
Övezet:
nincs adat -
Tetőtér:
nincs adat
