Ismertető
Tápióság központi részén, a Kölcsey utcában kínálunk megvételre három darab, új építésű, földszintes családi házat, amelyek egymás mellett, külön-külön 927 m²-es telkeken valósulnak meg. Mindhárom ingatlan teljesen önálló, 1/1 tulajdonú ház és saját telek formájában kerül kialakításra.
Főbb adatok:
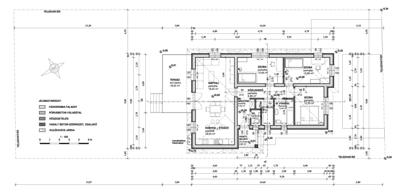
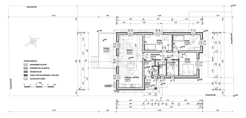
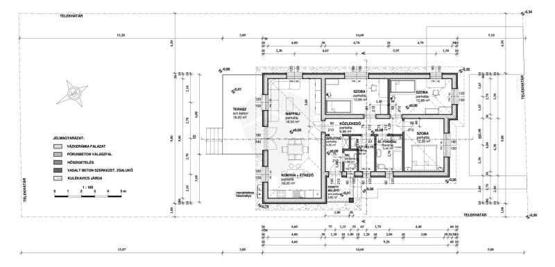
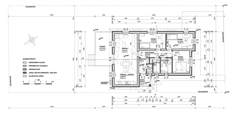
- hasznos alapterület: ~93 m²
- elrendezés: amerikai konyhás nappali + 2 hálószoba + fürdő + háztartási helyiség + terasz
- falazat: 30 cm nútféderes tégla + 15 cm EPS homlokzati hőszigetelés
- alap: vasalt beton
- födém: fa gerendás, gombaölő szerrel kezelt
- tető: fa tetőszerkezet, antracit betoncserép
- nyílászárók: 3 rétegű üvegezésű műanyag ablakok, fehér műanyag párkánnyal
- bejárati ajtó: műanyag thermo, biztonsági zárral
Gépészet:
- fűtés és melegvíz: monoblokk levegő–víz hőszivattyú, padlófűtéssel
- elektromos hálózat: riasztó és kapumozgató előkészítés
- csatorna, vízóra, villanyóra: saját mérővel kiépítve
Burkolatok és belső kialakítás:
- hidegburkolat: 3.000 Ft/m²-ig
- melegburkolat: 3.000 Ft/m²-ig
- beltéri ajtók: 30.000 Ft/db-ig
- szaniterek: mosdó 20.000 Ft/db-ig, WC 20.000 Ft/db-ig, kád/zuhany 40.000 Ft/db-ig
- festés: fehér színben, két rétegben
Extrák:
- mindhárom ház külön helyrajzi számon
- tágas, 927 m²-es saját kert
- terasz (burkolata egyedi egyeztetés szerint)
- parkolási lehetőség a telken belül
Finanszírozás:
Az ingatlanok megfelelnek a CSOK Plusz és az Otthon Start és Falusi CSOK feltételeinek, így akár kedvezményes állami támogatással és kamattámogatott hitellel is megvásárolhatók.
*projekt ingatlanok, szerződéskötés után kezdődik a megépítésük, 20% önrész szükséges
Részletek
-
Építés éve:
2025 -
Szobák száma:
4 -
Állapot:
új -
Épület típusa:
családiház -
Kilátás:
panorámás -
Tájolás:
DK -
Telekméret:
927 m2 -
Övezet:
nincs adat -
Tetőtér:
nincs adat
