Ismertető
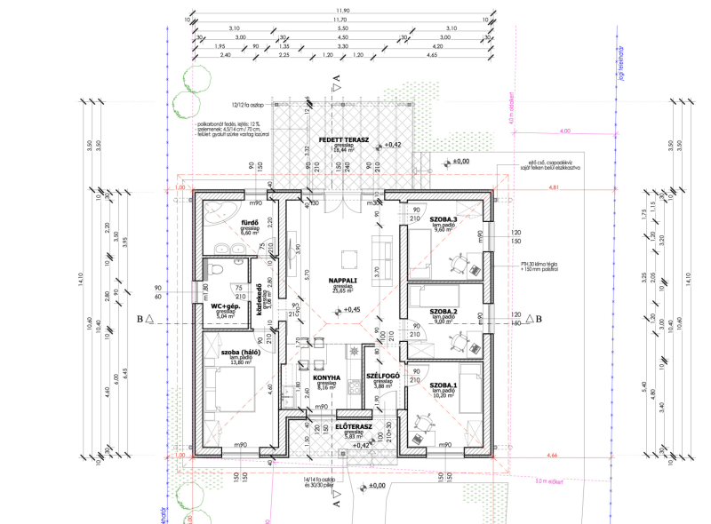
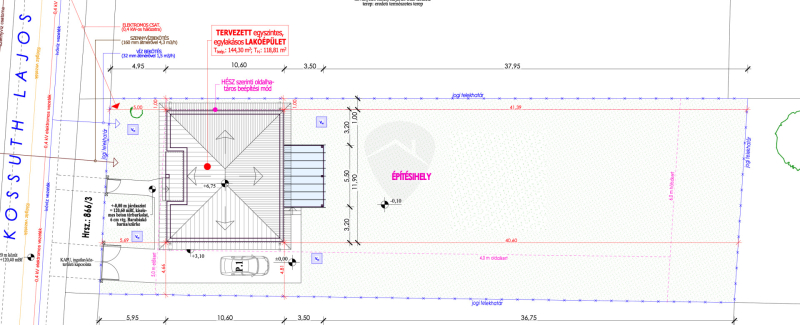
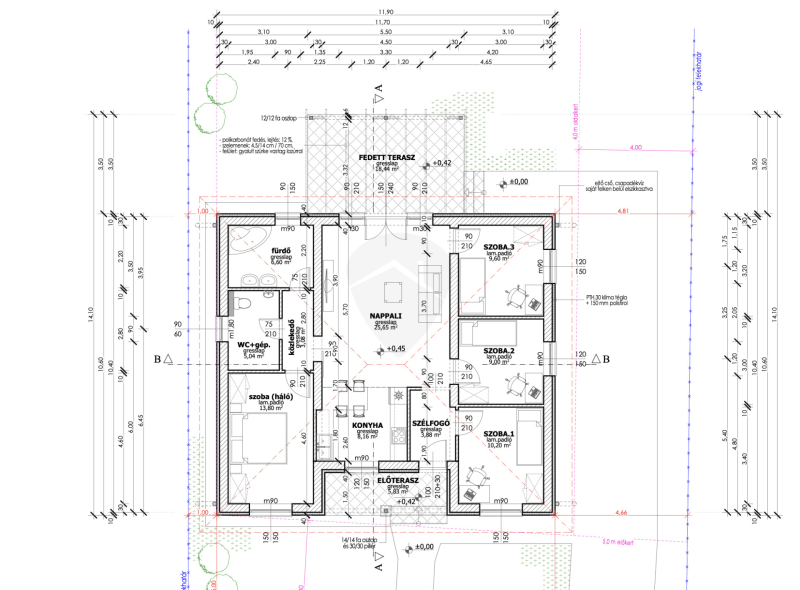
Tápióságon, a Kossuth Lajos utcában, egy 1000 m²-es telken, önálló családi ház kerül értékesítésre, amely nettó 95m²-es hasznos lakóteret kínál. 4 hálószoba + amerikai konyhás nappali.
CSOK Plusz támogatás és Falusi CSOK igényelhető!
Építési és műszaki jellemzők:
30-as nútféderes téglából épülő falazat.
Fa födém.
Antracit színű betoncserép fedés.
Homlokzat: 15 cm EPS szigetelés.
Padló: 10 cm Austrotherm AT-N100 hőszigetelés.
Födém: 25 cm ásványgyapot szigetelés.
Hat légkamrás, háromrétegű üvegezéssel ellátott nyílászárók.
A fűtési rendszer hőszivattyús, padlófűtéssel kombinálva biztosítja a meleget és a melegvizet.
Választható műszaki tartalom (meghatározott keretösszegen belül):
Hidegburkolat: 4000 Ft/m²-ig.
Melegburkolat: 4000 Ft/m²-ig.
Csaptelepek: 15.000 Ft/db.
Kád vagy zuhany: 40.000 Ft.
Beltéri ajtók: 35.000 Ft/db.
WC: hagyományos
Elektromos rendszer:
Konnektorok:
Szobák: 3 db.
Nappali: 4 db + internet és kábel-TV kiállás.
Konyha: 6 db.
Világítás: helyiségenként 1 pont.
Kábeltévé: előkészítés.
Extra opciók:
Magasabb kategóriás anyagok választása költségkülönbözet finanszírozása mellett.
Riasztó- és kapumozgató rendszer előkészítése.
Kérésre részletes tervdokumentáció és műszaki leírás is elérhető. A kivitelező korábbi referenciamunkái Tápióságon, Kókán és Sülysápon megtekinthetők előzetes egyeztetés alapján.
Átadás várható időpontja: 2026 2. fele.
Bármilyen kérdés, kérés esetén állunk rendelkezésre telefonon, üzenetben, vagy személyesen Isaszegi irodánkban! INTOR INGATLAN CSAPAT
Részletek
-
Építés éve:
2025 -
Szobák száma:
5 -
Állapot:
új -
Épület típusa:
családiház -
Terasz:
20 m2 -
Kilátás:
udvari -
Tájolás:
DK -
Telekméret:
1000 m2 -
Övezet:
nincs adat -
Tetőtér:
nincs adat
