Ismertető
Eladó prémium családi otthon Gyöngyöshalászon! AZ INGATLAN 70%-os készültségben van!
ÚJ LAKÓPARKBAN, ZÁRT KÖZÖSSÉGGEL!
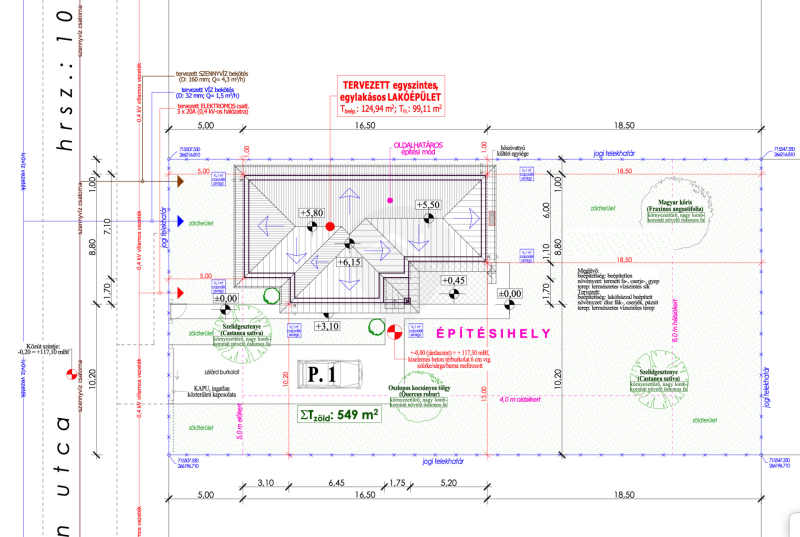
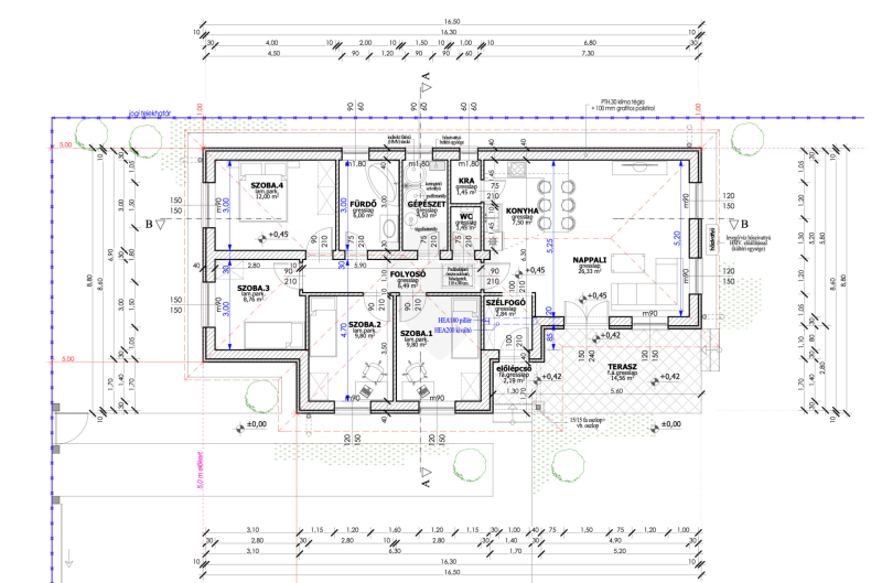
Gyöngyöshalászon, a fejlődő Toldi utcában eladásra kínálok egy nettó 93 m²-es, modern családi házat, amely 3 szobával és egy tágas nappalival biztosít kényelmes életteret. Az új lakópark sorompóval és portaszolgálattal védett bejárattal épül, így nyugodt, biztonságos környezetet kínál lakóinak.
Minőségi építési megoldások, energiatakarékos kialakítás
✔ Falazat: Porotherm P30N+F tégla, betonkoszorúval és fa födémszerkezettel
✔ Szigetelés:
✔ Lábazat: 10 cm lépésálló polisztirol
✔ Homlokzat: 10 cm grafitos hőszigetelés
✔ Födém: 25 cm ásványgyapot
✔ Nyílászárók: 3 rétegű üvegezésű, 6 légkamrás műanyag ablakok
✔ Fűtés: Levegő-víz hőszivattyús rendszer – alacsony fenntartási költségek, fenntartható megoldás
Személyre szabható belső tér
A belső kialakítás igény szerint választható burkolatokkal és szaniterekkel készül:
✅ Hidegburkolat: 4.000 Ft/m²
✅ Melegburkolat: 4.000 Ft/m²
✅ Beltéri ajtók: 30.000 Ft/db
✅ Fürdőkád: 40.000 Ft
✅ Csaptelepek: 15.000 Ft/db
Magasabb árkategóriájú termékek választására is van lehetőség!
Tökéletes választás minden korosztály számára
✔ Modern kialakítás és energiatakarékos technológiák
✔ Családosok, fiatalok és idősebbek számára egyaránt ideális otthon
✔ A zárt lakópark exkluzív környezetet biztosít
✔ Kiváló közlekedési lehetőségek
✔ Az építtető korábbi projektjei megtekinthetők referenciaként!
✔ Ne maradjon le erről a különleges lehetőségről!
Érdeklődjön most, és találja meg álmai otthonát!
Részletek
-
Építés éve:
2025 -
Szobák száma:
5 -
Állapot:
új -
Épület típusa:
családiház -
Kilátás:
panorámás -
Tájolás:
É -
Telekméret:
800 m2 -
Övezet:
nincs adat -
Tetőtér:
nincs adat
