Ismertető
Eladó prémium családi ház a Csillagutcában, közvetlen erdőkapcsolattal!
Egy modern, világos és prémium kivitelezésű otthont keres csendes, de jól frekventált környéken? Akkor ezt Önnek álmodtuk meg! Az új építésű, panorámás ingatlanunk egy nyugodt, biztonságos és kiváló infrastruktúrával rendelkező környezetben épül. A környéken túlnyomórészt új építésű házak találhatók, így garantáltan családbarát és exkluzív lakókörnyezetet biztosít.
Megbízható kivitelezés, gyors átadás
✔ Az építkezést egy nagy referenciával rendelkező helyi vállalkozó végzi
✔ A szerződéskötés után azonnali kezdés
✔ Kulcsrakész átadás 8 hónapon belül
Modern műszaki tartalom és energiatakarékos megoldások
✔ Falazat: 37,5 viablok falazóelem
✔ Szigetelés:
✔ 25 cm födém szigetelés
✔ Nyílászárók: Hat légkamrás, háromrétegű üvegezésű műanyag thermo ablakok
✔ Tető: Antracit cserép
✔ Elektromos kapu előkészítés
✔ Fűtés: Levegő-víz hőszivattyú
Személyre szabható belső tér
A burkolatok és a beltéri ajtók a vállalkozó által meghatározott összeghatárig választhatók:
✔ Hidegburkolat: 7.000 Ft/m²
✔ Melegburkolat: 7.000 Ft/m²
✔ Beltéri ajtók: 70.000 Ft/db
✔ Fürdőkád: 50.000 Ft
✔ Csaptelepek: 25.000 Ft/db
Magasabb árkategóriájú termékek választására is van lehetőség!
Kiváló lokáció, természetközeli környezet
✔ Erdőkapcsolatos telek, számos zöldterület és park a közelben
✔ Ideális választás természetkedvelőknek és nyugodt életet keresőknek
✔ A városközpont könnyen elérhető, üzletek, éttermek és szolgáltatások pár percre
✔ Az ingatlan CSOK+ képes!
✔ Várható befejezés: 2026 nyár
Érdeklődjön most, és biztosítsa be álmai otthonát!
Intor Ingatlan – Otthont biztonságban!
✔ Teljes körű ingatlanszolgáltatás az első lépéstől az utolsóig
✔ Segítünk az eladásban, vásárlásban, teljes körű ügyintézésben
(Referenciaképek feltöltésre kerülnek, melyek az épülő tervház kész állapotát mutatják.)
Részletek
-
Építés éve:
2025 -
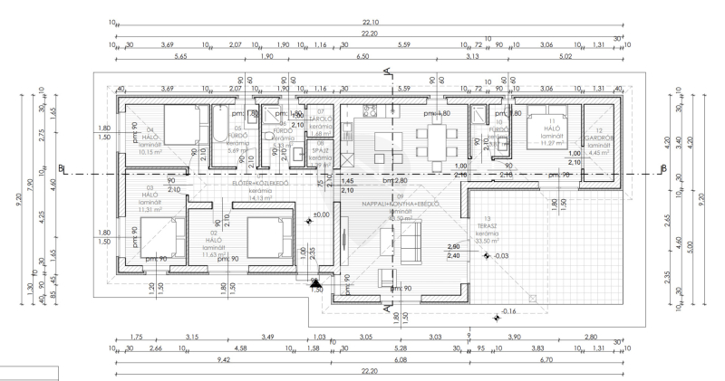
Szobák száma:
5 -
Állapot:
új -
Épület típusa:
családiház -
Terasz:
25 m2 -
Kilátás:
panorámás -
Tájolás:
DK -
Telekméret:
794 m2 -
Övezet:
nincs adat -
Tetőtér:
nincs adat
