Ismertető
Gödöllő egyik legkedveltebb utcájában, az Ady Endre sétányon kínálom megvételre ezt a tágas, 87,38 m²-es, jó elosztású, felújítandó állapotú téglaépítésű lakást, amelyhez saját kertrész, valamint egy külön helyrajzi számon szereplő, önálló aknás garázs is tartozik — utóbbi a vételár részét képezi.
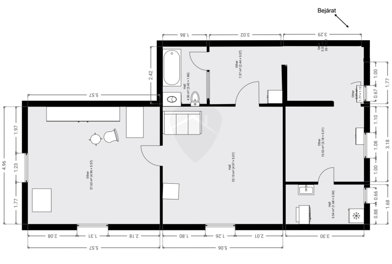
A lakás a magasföldszinten helyezkedik el, jogilag teljesen önálló, a szerkezet erős és stabil, a nyílászárókat pedig már korszerű műanyag ablakokra cserélték. Az ingatlan jelenlegi helyiségei kivétel nélkül 25 m² körüli nagyméretű szobák, így igény szerint akár 3–4 hálószoba is könnyedén kialakítható, ami különösen előnyös nagyobb családnak vagy befektetési célra.
A lakás alatt található egy fogászati komplexum, amely nem része a jelenlegi vételárnak, azonban igény esetén megvásárolható a lakással együtt. Amennyiben a komplexum egyben kerül értékesítésre, a lakást a vevő 1/1-es, önálló helyrajzi számon vásárolhatja meg. Ha nem kerül megvételre, akkor az ügyvédi megosztásnak köszönhetően osztott közös tulajdon jön létre, amely a használat és tulajdonlás szempontjából semmilyen hátránnyal nem jár.
Fűtését jelenleg gáz konvektor biztosítja, a melegvízről villanybojler gondoskodik.
Miért különleges lehetőség ez az ingatlan?
Ritka, nagyméretű lakás saját kertrésszel
Önálló aknás garázs a vételárban
Könnyen 3–4 szobássá alakítható
Jól szeparálható funkciók, önálló jogi helyzet
Csendes, mégis központi elhelyezkedés Gödöllő egyik legjobb utcájában
Gödöllő – otthon, ahol élmény élni
Gödöllő a fővárostól mindössze néhány percre fekvő, kivételes hangulatú, dinamikusan fejlődő város. A gyönyörű zöld környezet, a kiváló infrastruktúra, az egyetem és a barátságos közösség mind hozzájárulnak ahhoz, hogy az itt élők valódi otthonra találjanak. Az Ady Endre sétány pedig a város egyik legszebb, legbefogadóbb környezete, ahol minden adott a minőségi, nyugodt mindennapokhoz.
Részletek
-
Építés éve:
1980 -
Szobák száma:
2 -
Állapot:
használt-felújítandó -
Fűtés:
cirkó -
Épület típusa:
tégla -
Kilátás:
udvari -
Tájolás:
ÉK
