Ismertető
Budapesten a XIV. kerületben, Zugló legkeresettebb zöldövezeti részén kínálom eladásra ezt a szuper, dupla komfortos, 3 erkélyes, bruttó 116 nm-es lakást.
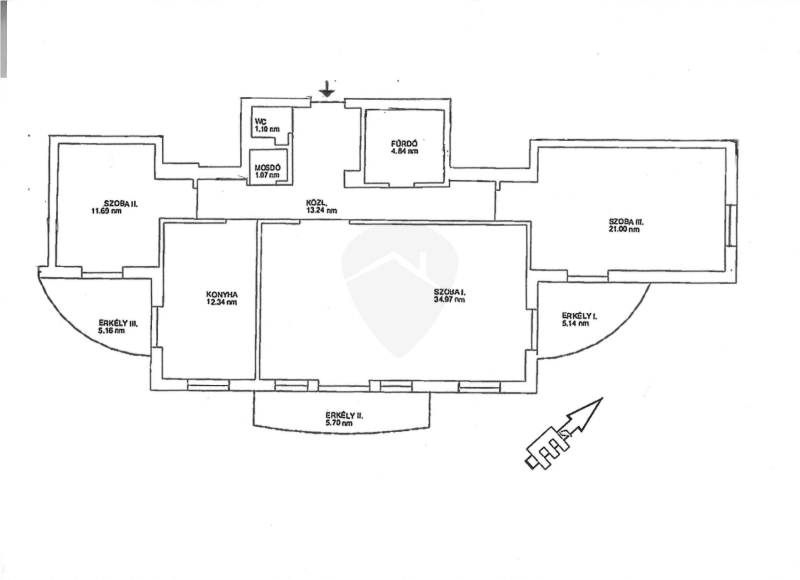
A lakás nappali + 2 szobás (de 3 külön szobássá alakítható). Eredetileg is 4 szobás (nappali + 3 szoba) lakás volt tervezve, de építésnél a tulajdonos már így jelenlegi állapotában kérte, ezzel az óriási 35 m2-es nappalival, 2 külön nyíló szobával. Minden szobához tartozik egy erkély!
Befektetésnek, kiadás céljára is kiválóan alkalmas! A 3 szobát külön-külön egyetemistáknak is kiadható! Lokációja , környező közlekedés kiváló, Budapesti Gazdasági Egyetem pár perc sétára.
Tágas terekkel rendelkező, körbe napozott, extra világos lakást mutatok be Önnek, ahol egy család kényelmesen élheti mindennapjait.
Biztonsági ajtóval, riasztóval, kamerával felszerelt a lakás. Mindenütt nyitásgátlóval ellátott alumínium redőnnyel, szúnyoghálóval felszerelt thermo üvegezésű műanyag nyílászárók.
Az otthon melegéről és a meleg vízről gázcirkó gondoskodik.
Klima előkészités minden helységben, leendő tulajdonosra vár a beszerelése.
A lakás a 2. emeleten helyezkedik el, lift nélküli házban. A lakás 100 nm-es hasznos lakóterülettel rendelkezik plusz 3 db erkélyből áll, melyek 5,14 nm; 5,16 nm; 5,7 nm-esek.
Nagyon praktikus elrendezésének köszönhetően maximálisan kihasználhatóak az erkélyek, melyre a konyhából, nappaliból és a szobákból is kijuthatunk.
Lakáshoz külön megvásárolandó egy 5 nm-es tároló és egy mélygarázsban található 16 nm-es óriási parkolóhely.
Parkolóhely 9.000.000 Ft
Tároló 5.000.000 Ft
A ház melyben a lakást kínálom 1999-ben épült, 10 cm szigeteléssel, családi házas övezet csendes részén.
Lakóközössége rendes és csendes, zárt lépcsőháza tiszta és karban tartott, belső udvara kertész által folyamatosan gondozott.
Mélygarázs feljárója fűtött, így a téli hónapokban sem okoz gondot a le- és feljárás.
Ha a leendő tulajdonosoknak több autója is van, további mélygarázsban lévő parkolóhely megvásárlásra is van lehetőség.
Az ár teljes bútorzattal és gépesítéssel eladó!
Intor Ingatlan – Otthont biztonságban!
Irodánk az értékesítés első lépésétől az utolsóig az Ön rendelkezésére áll. Amennyiben valamelyik ingatlanunkat jelenlegi ingatlana értékesítése után kívánja megvásárolni, vagy ha egy megbízható irodával szeretne együttműködni, amely teljes körű ügyintézést biztosít megfizethető áron, forduljon hozzánk bizalommal!
Jöjjön el, nézze meg ezt a kivételes lakást, szeressen bele és legyen boldog tulajdonosa!
Hívjon még ma!
Részletek
-
Építés éve:
1999 -
Szobák száma:
3 -
Állapot:
kiváló -
Fűtés:
cirkó -
Épület típusa:
tégla -
Terasz:
16 m2 -
Kilátás:
utcai -
Tájolás:
DK
