Ingatlan adatlap

Eladó ház

Vácszentlászló

  • méret: 92 m2
  • 3 szoba
  • telek: 1033 m2
63.0 MFt

Ismertető

ELKEZDŐDÖTT AZ ÉPÍTKEZÉS!
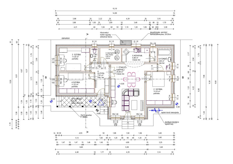
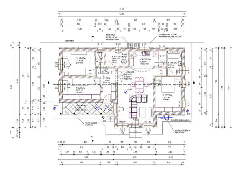
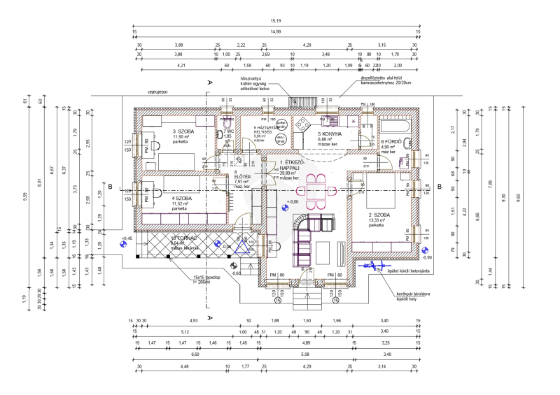
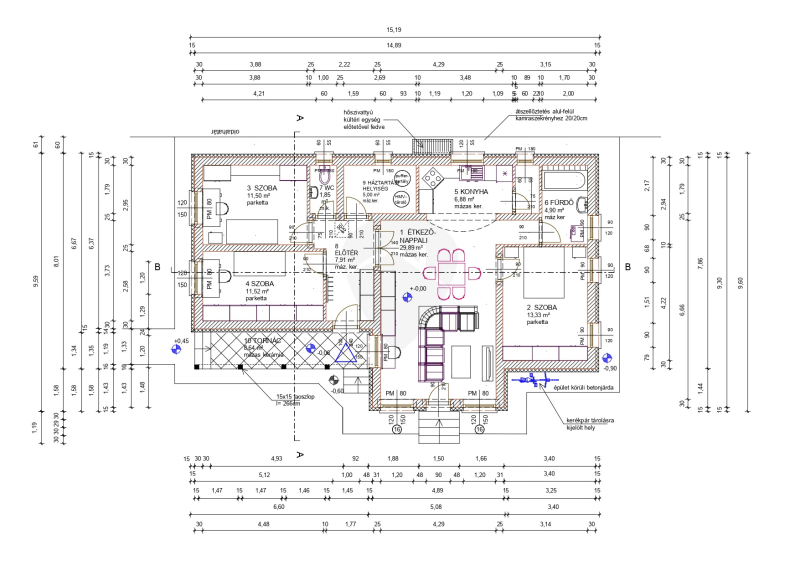
Eladásra kínálunk Vácszentlászlón egy 1033 m2-es telken elhelyezkedő egyszintes, egylakásos, 92 m2 lakóterületű ingatlant.
Vácszentlászló csendes utcájában, nagyon jó helyen az Erdő utcában épül ez az újépítésű kiváló otthon. 92 m2-es lakóterületen konyha, nappali étkezővel + 3 szoba, háztartási helyiség, fürdőszoba, wc található.

Az ingatlan részei:
- 92,19 m2 lakótér
- 8,64 m2 fedett tornác
Igény esetén nappalihoz csatlakozó terasz kiépítése

Az ingatlan POROTHERM 30 HS tégla falazóelemből épül,
közbenső teherhordő falak POROTHERM 25 téglából, válaszfalak 10 cm téglából, fa födémmel.
Kívül fehér színű nemesvakolatot kap a ház.
A tető antracit színű LINDAB acél cserepeslemez héjazatot kap.
A homlokzat 15 cm EPS, a padló 10 cm Austrotherm AT-N100-as, míg a vízszintes födém 25 cm ásványgyapot hőszigetelést kap.

A fehér színű műanyag nyílászárók hat légkamrás, háromrétegű üvegezéssel készülnek.

A fűtésről monoblokkos hőszivattyús rendszer gondoskodik, padlófűtéssel.

A műszaki tartalom az alábbi kereteken belül szabadon választható:

Hidegburkolat: 3.000 Ft/m²-ig
Melegburkolat: 3.000 Ft/m²-ig
Csaptelepek: 15.000 Ft/db
Kád vagy zuhany: 40.000 Ft/db
Beltéri ajtók: 35.000 Ft/db
Elektromos rendszer kiépítése:
Szobák: 3 konnektor/helyiség
Nappali: 4 konnektor + internet- és kábeltévé előkészítés
Konyha: 6 konnektor
Világítás: helyiségenként 1 kiállás
Kábeltévé: előkészítve
A megadott költségkeret feletti műszaki tartalom is választható, a különbözet finanszírozásával.
Előkészítésre kerül a riasztórendszer és a kapunyitó elektronika is.

Igény esetén komplett tervdokumentációt és részletes műszaki leírást biztosítunk.
Megbízható kivitelező referencia munkája megtekinthető.
Várható átadás: 2026 második negyedév

Jogerős építési engedélyre sem kell várni, elkezdődött az építkezés!
Hívjon még ma!

Intor Ingatlan - Otthont biztonságban!

Ingyenes hiteltanácsadás és CSOK Plusz, Otthon Start ügyintézés!
Bankfüggetlen hitelcentrumunk az összes hazai bank és hitelintézet ajánlatát versenyezteti az Ön érdekében — díjmentesen!
- Egyedi, bankfiókban nem elérhető kamat- és díjkedvezmények
- Hitelképesség előminősítés
- Idő-, energia- és pénzmegtakarítás
- Teljes körű ügyintézés

Részletek

  • Építés éve:

    2025
  • Szobák száma:

    3
  • Állapot:

    új
  • Épület típusa:

    családiház
  • Kilátás:

    utcai
  • Tájolás:

    É
  • Telekméret:

    1033 m2
  • Övezet:

    nincs adat
  • Tetőtér:

    nincs adat

Intor Ingatlan - Otthont biztonságban!

Kapcsolat

Telefonszám:
+36706359715

E-mail:
info@intoringatlan.hu

Egyéb:
Adatvédelem