Ismertető
Eladásra kínálok Tóalmáson egy 417 nm-es telken fekvő két lakrészből álló családi házat.
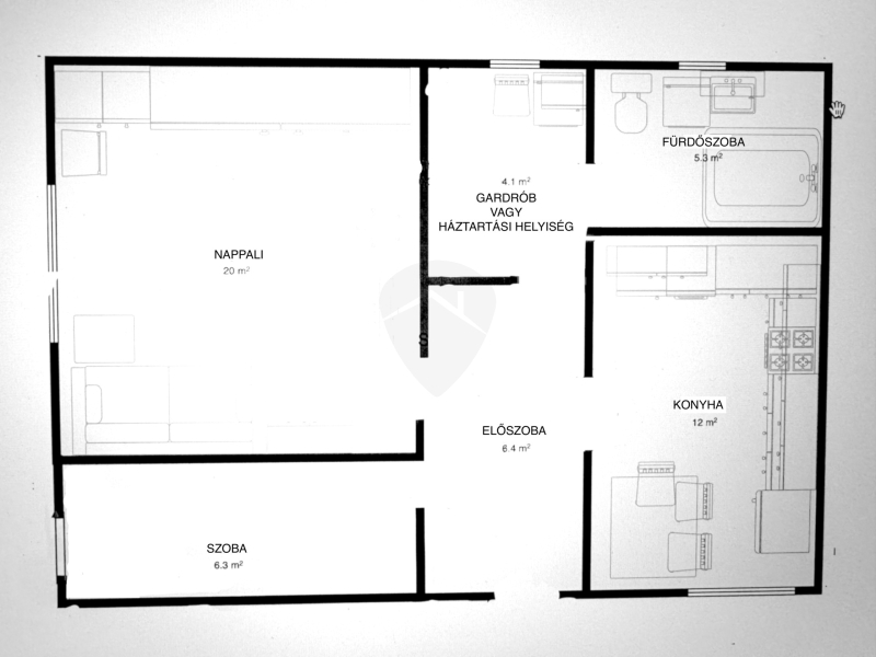
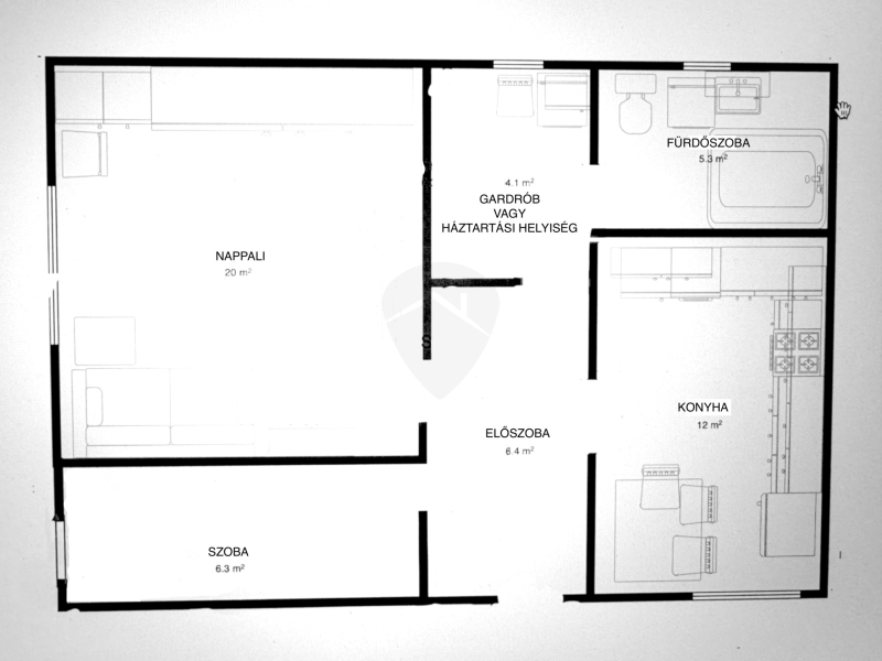
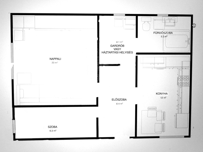
Első lakrész áll: 1 és fél szoba, nagy fürdő sarokkáddal, konyha-étkező, előszoba, háztartási helyiség ami akár gardróbszoba is lehet. Falmozgatással akár 2 nagy szoba is kialakítható.
Második lakrész: konyha-nappali és fürdőszoba
A ház az 1960-as években épült vegyes falazattal. Jelenlegi tulajdonos az idei évben teljeskörűen felújította és igényesen szépítette a családi házat és a teljes udvart. Teljes nyílászáró csere, villamos- és víz hálózat csere megtörtént, a ház külső szinezést kapott, kerítés festésére, udvar tereprendezésére is sor került. Az udvarban aluminium garázs áll, melyben két gépjármű kényelmesen elfér, de az udvarban is van lehetőség a parkolásra.
A második, hátsó lakrész kiválóan alkalmas vendégek, hozzátartozó elszállásolására, vagy akár egy vállalkozásra is alkalmas helyiség. Ki lehet alakítani itt akár egy szépségszalont vagy varrodát vagy bármit.
A két lakrész külön mérőórákkal rendelkezik, ezért akár kiadásra is tökéletes!
A házhoz tartozik egy tároló és egy szerelőaknás garázs is!
Itt minden egy helyen megtalálható: Egy családi otthon, külön lakrész (üzlethelyiség), két állásos garázs, tároló, szerelőaknás garázs műhellyel, mindez egy szép virágos udvarral körülvéve.
Jöjjön el és nézze meg!
Részletek
-
Építés éve:
1960 -
Szobák száma:
1 -
Félszobák száma:
2 -
Állapot:
nincs adat -
Fűtés:
kazán -
Épület típusa:
családiház -
Kilátás:
utcai -
Tájolás:
DNY -
Telekméret:
414 m2 -
Övezet:
nincs adat -
Tetőtér:
nincs adat
