Ismertető
Szada csendes részén, 823 m²-es telken kínálunk megvételre egy háromszintes, jelenleg is lakott és működő épületet, amely eredetileg gazdasági épületként épült 1986-ban, azonban már lakófunkcióval rendelkezik. Ideális választás lehet összeköltözőknek, vállalkozóknak, home office-ban dolgozóknak, vagy akár kisvállalkozás + lakhatás kombinációban gondolkodóknak is.
Jelenlegi funkciók:
Pince: irodahelyiségként használt, két tárolóból áll (összesen 38 m²)
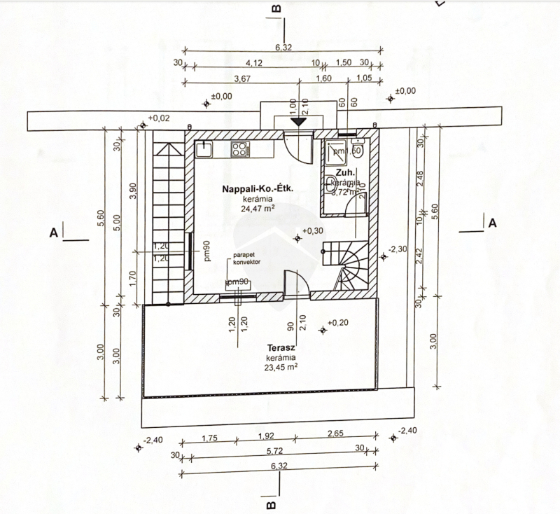
Földszint: nappali–konyha, zuhanyzó–WC (összesen 28 m²)
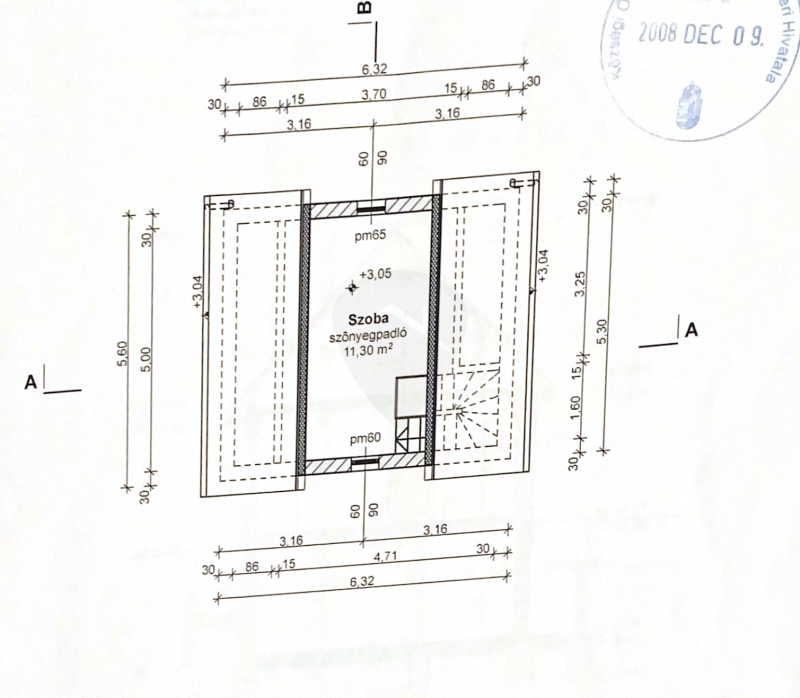
Tetőtér: egy hálószobaként funkcionáló szoba (összesen 50 m²)
Teraszok: két terasz (30,64 m² + 23,45 m²)
Összes hasznos alapterület:
117 m² lakótér + két nagy méretű terasz
Műszaki jellemzők:
Építés éve: 1986
Szerkezet: zsalukő és blokktégla falazat, utólagos 8 cm Nikecell hőszigetelés
Tetőszerkezet: torokgerendás fa tető, TONDACH cserép
Homlokzat: kapart kőporos vakolat, pince téglaburkolat
Nyílászárók: műanyag és fa, hőszigetelt üvegezéssel
Födém: pince felett vb. gerendás, földszint felett fafödém
Burkolatok: kerámia és szőnyegpadló
Szigetelés: tetőtérben 15 cm ISOLYTH, pincepadlóban bitumenes vízszigetelés
Szennyvízelvezetés: zárt szennyvízgyűjtőbe történik
Fűtés:
Gázkonvektor a helyiségekben
Elektromos panel a zuhanyzóban
Elhelyezkedés: Szada, Szőlőhegy. Örökpanorámás.
Ez az ingatlan kiváló lehetőség egyéni vállalkozók, alkotók, kis cégek vagy olyan családok számára, akik egy lakó- és munkahelyet egyben keresnek.
Ritka adottságú, többfunkciós tér – ne hagyja ki!
Részletek
-
Építés éve:
1986 -
Szobák száma:
3 -
Félszobák száma:
1 -
Állapot:
jó -
Fűtés:
konvektor -
Épület típusa:
családiház -
Terasz:
53 m2 -
Kilátás:
panorámás -
Tájolás:
DNY -
Telekméret:
823 m2 -
Övezet:
nincs adat -
Tetőtér:
nincs adat
