Ingatlan adatlap

Eladó ház

Sülysáp

  • méret: 93 m2
  • 4 szoba
  • telek: 1750 m2
60.0 MFt

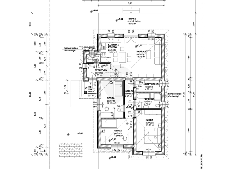
Ismertető

Sülysápon, nagy telken 2 db családi ház épül, egymástól teljesen elkülönítve. A hátsó házhoz külön zárt út vezet majd.
Az építkezés szerződéskötés után indul, kb 8 hónapos átadási határidővel.

-Telek mérete: 1750m² / db
-Nettó hasznos alapterület: 92,47 m²
-Önálló, földszintes családi ház
Kivitelező és referencia:
A kivitelező több azonos terv alapján készült ingatlant valósított meg Sülysápon.

Elérhető támogatások:
-CSOK Plusz
-Otthon Start

Szerkezet és szigetelés:
-Falazat: 30 cm nútféderes tégla
-Födém: fafödém
-Tetőfedés: antracit színű betoncserép
-Homlokzat: 15 cm EPS hőszigetelés
-Padló: 10 cm Austrotherm AT-N100 szigetelés
-Vízszintes födém: 25 cm ásványgyapot szigetelés

Nyílászárók:
-Hat légkamrás, háromrétegű üvegezéssel szerelt ablakok

Fűtés:
-Monoblokkos hőszivattyús rendszer
-Padlófűtés

Alap műszaki tartalom (választható keretösszegekig):
-Hidegburkolat: 3.000 Ft/m²
-Melegburkolat: 3.000 Ft/m²
-Csaptelepek: 15.000 Ft/db
-Kád vagy zuhanyzó: 40.000 Ft
-Beltéri ajtók: 35.000 Ft/db

Elektromos kiépítés:
-Szobánként 3 konnektor
-Nappaliban 4 konnektor + internet és kábel TV kiállás
-Konyhában 6 konnektor
-Világítás helyiségenként 1 pont
-Kábeltévé előkészítés

További lehetőségek:
-Magasabb kategóriájú műszaki tartalom is választható a különbözet finanszírozásával
-Riasztórendszer előkészítés
-Kapumozgató elektronika előkészítés

Igény esetén komplett tervdokumentáció és részletes műszaki leírás biztosított
Átadás:
2026. II. negyedév

Teljes körű ingyenes tanácsadás, hitelügyintézés
Intor Ingatlan

Részletek

  • Építés éve:

    2025
  • Szobák száma:

    4
  • Állapot:

    új
  • Épület típusa:

    családiház
  • Terasz:

    20 m2
  • Kilátás:

    utcai
  • Tájolás:

    ÉK
  • Telekméret:

    1750 m2
  • Övezet:

    nincs adat
  • Tetőtér:

    nincs adat

Hasonló ingatlanok

67.9 MFt

Eladó ház

Sülysáp

  • méret: 93 m2
  • 4 szoba
  • telek: 1750 m2
70.0 MFt

Eladó ház

Sülysáp

  • méret: 93 m2
  • 4 szoba
  • telek: 1750 m2

Intor Ingatlan - Otthont biztonságban!

Kapcsolat

Telefonszám:
+36706359715

E-mail:
info@intoringatlan.hu

Egyéb:
Adatvédelem