Ismertető
RITKA!
Ha olyan otthont keresel, ahol a kertkapcsolat természetes, a szomszéd mosolyog, és a gyerekek szabadon bicikliznek az utcában – akkor megtaláltad.
A Sissy Villa Park nem csak egy lakópark – egy életérzés.
Amerikai hangulat Mogyoródon: kerítés nélküli házak, rendezett előkertek, közösségi programok, családias légkör. Itt a lakók ismerik egymást, figyelnek a másikra, mégis megmarad a privát tér.
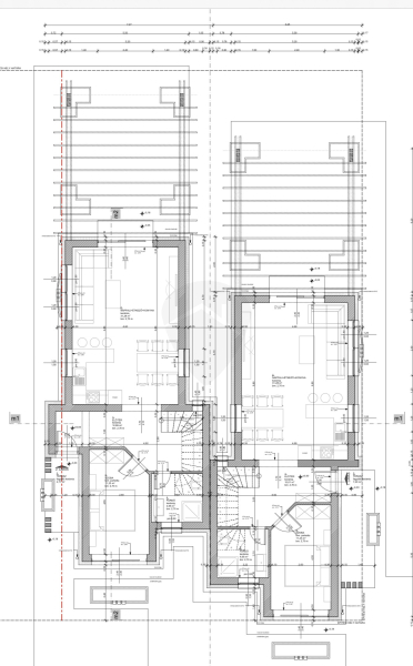
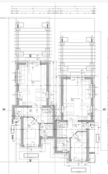
A kínált ingatlan egy 2020-ban épült ikerházfél, de külön helyrajzi számon, jogi és funkcionális értelemben is önálló családi ház.
Főbb jellemzők:
• Nappali + 3 hálószoba
• 2 teljes értékű fürdőszoba
• Modern gázcirkós fűtés
• Praktikus alaprajz
• Intim kertkapcsolat
• Kellemes terasz
Az ikerfelek csupán egy rövid falszakaszon érintkeznek, a kivitelezés pedig gondoskodik a zajmentes, nyugodt életről. Az építéskori teljes tervdokumentáció rendelkezésre áll.
A megközelítés Budapestről kb 15-20p autóval.
Ha egy barátságos, mégis elegáns környezetre vágysz, ahol a nyugalom és a közösség kéz a kézben jár – akkor ez az otthon neked szól.
Részletek
-
Építés éve:
2020 -
Szobák száma:
4 -
Állapot:
nincs adat -
Fűtés:
cirkó -
Épület típusa:
ikerház -
Terasz:
38 m2 -
Kilátás:
kertre néz -
Tájolás:
DK -
Telekméret:
350 m2 -
Övezet:
nincs adat -
Tetőtér:
nincs adat
