Ingatlan adatlap

Eladó ház

Isaszeg

  • méret: 236 m2
  • 6 szoba
  • telek: 1086 m2
110.0 MFt

Ismertető

Eladó kétgenerációs családi ház Isaszegen – 236 m², 1086 m² telken

Isaszeg csendes, kertvárosi részén eladó egy téglaépítésű, összesen 236 m²-es családi ház, amely két különálló lakrészből áll, így kiváló választás nagycsaládosoknak vagy kétgenerációs együttélésre is.

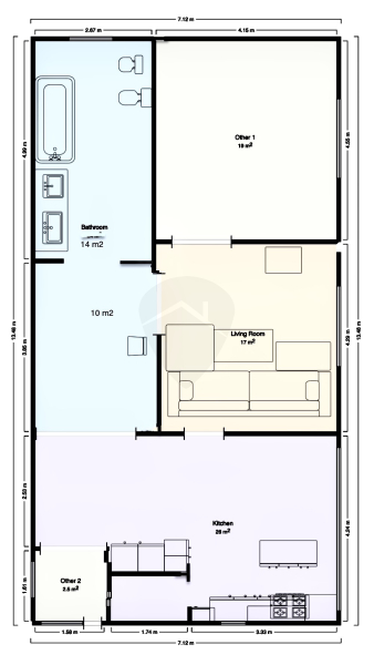
A kisebb, 96 m²-es fiatalos, modern lakás:

- előtér
- tágas amerikai konyhás nappali erkéllyel
- óriási fürdőszoba: dupla mosdó, kád, zuhanyzó, WC, bidé
- 2 szoba

Ez a lakrész 1956-ban épült, majd 2000-ben teljes körű felújításon esett át, mely magába foglalja a vezetékek cseréjét, nyílászáró cserét, fűtés korszerűsítést, ház szigetelését.

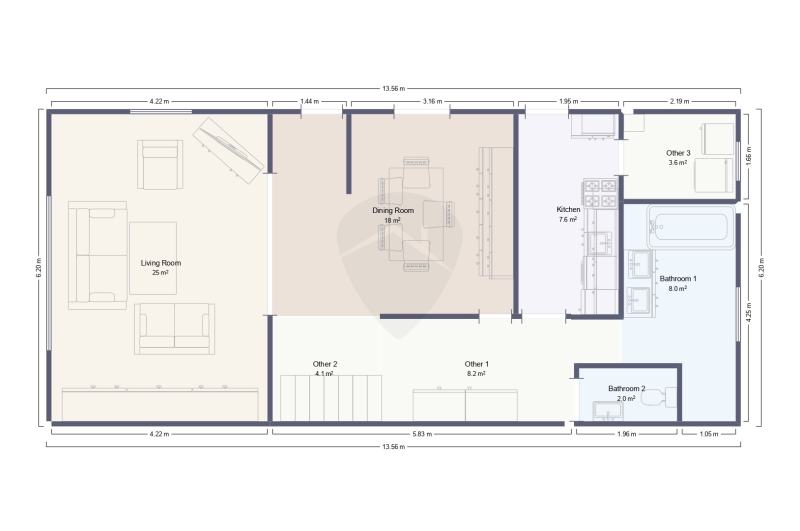
A nagyobb, 140 m²-es két szintes lakás:

Alsó szint:

- előtér
- hatalmas nappali
- konyha
- kamra
- étkező
- fürdőszoba
- külön WC
- étkezőből és konyhából nyíló hatalmas fedett terasz

Felső szint:

- 3 hálószoba
- két szobából nyíló 13 m²-es erkély

Szuterén szint:

- garázs és tároló
- kazánház

Ez a ház 1979-ben épült, folyamatos felújításon ment keresztül. 2000-ben műanyag nyílászárókkal, 8 cm EPS szigeteléssel és cserepeslemez tetőfedéssel látták el az egész házat.

Telek és extrák:

- 1086 m² telek
- gondozott kert telis-tele különféle gyümölcsfákkal
- kétállásos garázs az udvarban
- fúrt kút a kerti locsoláshoz
- vegyes tüzelésű kazán + kiépített gázcirkó (csak rácsatlakozni szükséges)
- meleg vizet gázbojler biztosítja

Ez az ingatlan tágas tereivel, két különálló lakrészével és kiváló adottságaival ritka lehetőség a környéken.
Jöjjön el, nézze meg, szeressen bele! Legyen ez a családi otthon az új családi fészek!

Részletek

  • Építés éve:

    1979
  • Szobák száma:

    6
  • Állapot:

  • Fűtés:

    egyéb
  • Épület típusa:

    családiház
  • Kilátás:

    utcai
  • Tájolás:

    DK
  • Telekméret:

    1086 m2
  • Övezet:

    nincs adat
  • Tetőtér:

    nincs adat

Hasonló ingatlanok

135.0 MFt

Eladó ház

Isaszeg

  • méret: 236 m2
  • 6 szoba
  • telek: 1086 m2
89.0 MFt

Eladó ház

Isaszeg

  • méret: 236 m2
  • 6 szoba
  • telek: 1086 m2

Intor Ingatlan - Otthont biztonságban!

Kapcsolat

Telefonszám:
+36706359715

E-mail:
info@intoringatlan.hu

Egyéb:
Adatvédelem