Ingatlan adatlap

Eladó ház

Hort

  • méret: 148 m2
  • 4 szoba
  • telek: 669 m2
61.9 MFt

Ismertető

Egy modern, világos és prémium kivitelezésű ingatlant keresel a felkapott környéken? Ezt most neked álmodtuk meg! Ingatlanunk a Határ utcában található!

! Hátsókert közvetlen érintkezik az erdővel, így gyönyörű panorámával rendelkezik a telek !

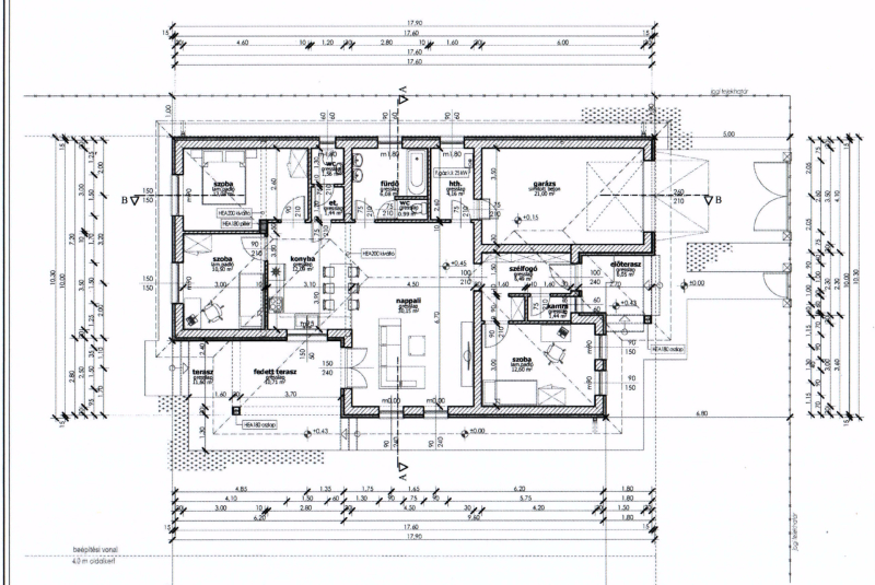
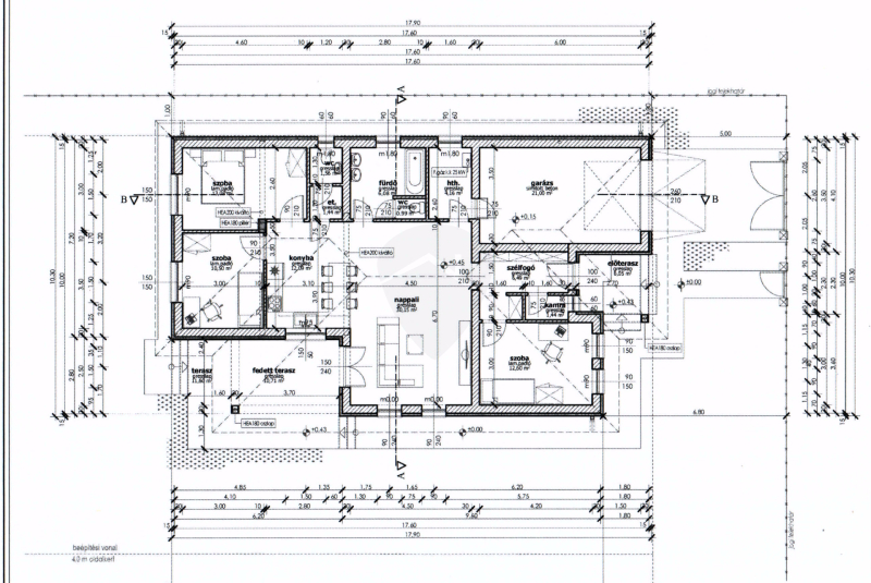
Az ingatlan lakütere 101 négyzetméter melyhez tartozik egy 21 négyzetméteres garázs közvetlen bejárattal az ingatlanba, valamint előterasz fedett terasz és terasz is.

Nagy referenciával* rendelkező helyi vállalkozó készíti, aki minden kérdés és kérés esetén rendelkezésünkre áll. Az építkezés szerződés után azonnal elkezdődik, és 6-8 hónapon belül kulcsrakész lesz.

Az ingatlan állapota új építésű, így minden részletét az Ön igényeinek megfelelően alakítottuk ki. A fűtést egy hőszívattyú fogja biztosítani, mely egy H-tarifás mérőóráról fog üzemelni.

Műszaki leírás:

• P30N+F téglafal
• 10 centis Grafitos szigetelés
• 25 centis födém szigetelés
• hat légkamrás 3 rétegű műanyag thermo nyílászárók
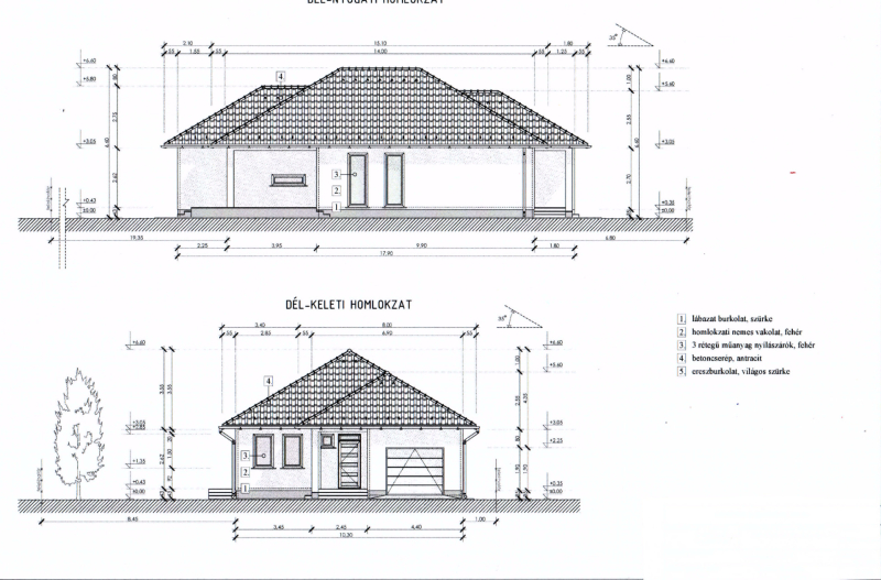
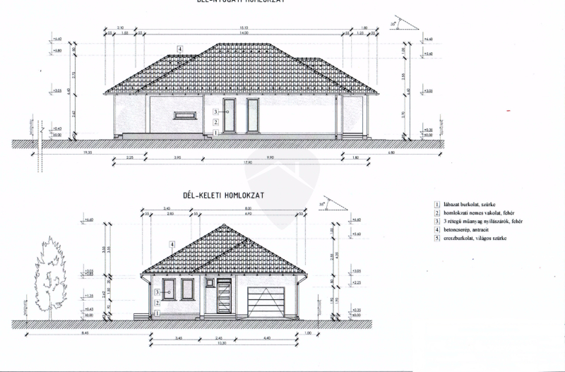
• antracit cserép
• elektromos kapu előkészítés
A burkolatok és a beltéri ajtók a vállalkozó által biztosított összeghatárig választhatóak:

• Hidegburkolat: 3.000.-/m2
• Melegburkolat: 3.000.-/m2
• Beltéri ajtók: 30.000.-/db
• Fürdőkád: 40.000.-
• Csaptelepek: 15000.-/db


A környék előnyeit tekintve, számos zöld terület és park található a közelben, így a természet szerelmesei számára is ideális helyszín lehet az ingatlan. Emellett a város központjában számos üzlet, szolgáltatás és étterem található, így a mindennapi élethez szükséges dolgok is könnyen elérhetőek.

Ha kérdése merülne fel az ingatlanról, vagy érdeklődne további részletek iránt, bátran keressen minket.

AZ INGATLAN CSOK+ KÉPES!
Várható befejezés 2026. 2. negyedév

Intor Ingatlan – Otthont biztonságban!

Irodánk rendelkezésére áll az értékesítés első lépésétől, egészen az utolsóig. Amennyiben valamelyik ingatlanunkat jelenlegi ingatlanja értékesítése után kívánja megvásárolni, vagy egy megbízható irodával kívánna együttműködni, amely teljeskörű ügyintézést biztosít, megfizethető áron, forduljon hozzánk bizalommal!


* referenciaképek kerülnek feltöltésre, amik az épülő tervházat mutatják kész állapotban.

Részletek

  • Építés éve:

    2024
  • Szobák száma:

    4
  • Állapot:

    új
  • Épület típusa:

    családiház
  • Kilátás:

    panorámás
  • Tájolás:

    DK
  • Telekméret:

    669 m2
  • Övezet:

    nincs adat
  • Tetőtér:

    nincs adat

Extrák

Intor Ingatlan - Otthont biztonságban!

Kapcsolat

Telefonszám:
+36706359715

E-mail:
info@intoringatlan.hu

Egyéb:
Adatvédelem